- 14. júl 2025 o 15:10 / aktualizované 15.07. o 20:10
Ďalšia krčma, zimný štadión či fajčiarska zóna. Ružinovčania hádajú, čo sa stavia pred poliklinikou, poznáme odpoveď
Ak ste v týchto dňoch prechádzali okolo Polikliniky Ružinov, mohli ste si všimnúť novú stavbu, ktorá pred zdravotníckym zariadením pomaly rastie. Nachádza sa v tesnej blízkosti krčmy U Štrngáča, známu medzi miestnymi.
Ružinovčania sa na pôvod stavby pýtali aj na sociálnom médiu a snažia sa uhádnuť, čo z nej vznikne. „Viete niekto prosím, čo sa stavia pred poliklinikou Ružinov?“ pýta sa anonym. Niektorým sa navyše nepozdáva, ako blízko ku krčme nová stavba je.
„Toľko priestoru inde, bližšie k nemocnici keby to dali. Však to pole je veľké a oni to rovno dajú tam, kde to prekáža najviac. Nielen výhľadu zo Štrngáča, ale aj už tak zťaženej premávke na ceste vedľa Štrngáča. Väčšiu hovadinu už vymyslieť nemohli,“ sťažuje sa rezidentka Michaela.
Keďže sa stavba nachádza veľmi blízko krčmy, niektorí Ružinovčania si myslia, že pôjde o jej rozšírenie. Václav vraví, že to bude zrejme nová fajčiarska zóna. Iní zase hádajú, že pôjde o celkom novú krčmu, ktorá chce Štrngáču konkurovať.
Ďalší vravia, že to bude konkurencia iných stavieb v okolí. Vraj nový zimný štadión či „poliklinika pre škrečky“. Aká je však pravda? Vieme, čo pri poliklinike napokon vznikne. Ozrejmil to starosta Martin Chren ešte v apríli.
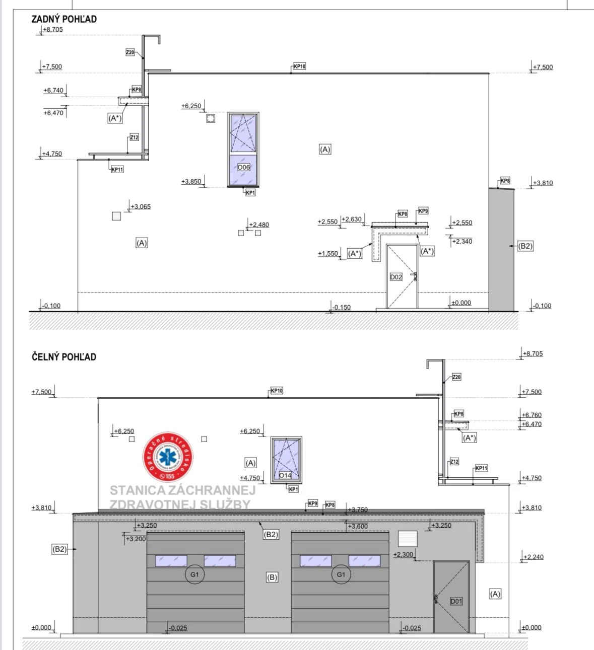
Pozemok patrí Ministerstvu zdravotníctva SR a investorom novej stavby je Operačné stredisko záchrannej zdravotnej služby SR, príspevková organizácia rezortu. Nepôjde však o žiadnu veľkú stavbu či panelák. Vznikne tu rozmerovo pomerne malá, dvojpodlažná budova dvojposádkovej stanice záchrannej zdravotnej služby.
Prízemie bude pozostávať z garáže pre sanitky, skladových priestorov či technologických miestností. Prvé poschodie bude určené pre personál ambulancií záchrannej zdravotnej služby.

„Výstavba dvojposádkovej stanice ZZS je súčasťou investície z Plánu obnovy, ktorej hlavným cieľom je výstavba minimálne 55 staníc ZZS v rámci celého územia Slovenska. Táto stanica ZZS má byť pevným a nemenným bodom v rámci optimalizovanej siete staníc ZZS. Funkciou stanice ZZS je poskytnutie plnohodnotného zázemia pre ambulancie záchrannej zdravotnej služby. Dvojposádková stanica ZZS Ružinov je určená pre dve posádky, resp. pre dve ambulancie záchrannej zdravotnej služby,“ objasňuje starosta Chren.
Minútky zo Slovenska
- 13:00 Bánovce získali viac ako 600-tisíc eur na novú cyklotrasu, mesto chce posilniť prepojenie s okolitými obcami
- 13:00 Trh so športovým tovarom čaká zemetrasenie. Na Slovensko prichádza poľský gigant, kde otvorí prvú predajňu?
- 13:00 VIDEO: Večerné ulice zaplnili cyklisti. Nočná jazda v Piešťanoch prilákala desiatky ľudí
- 13:00 Medveď sa má pohybovať v Trnovom už viac dní: Nové hlásenie spresňuje miesto, ľudí vyzývajú na opatrnosť
- 13:00 Najnovší prieskum ukázal, ktorý svetový líder je u Slovákov najobľúbenejší. Neuveríte, ako dopadol Trump
- 12:30 FOTO: Nočný zlodej vyčíňal v Bánovciach celé mesiace: Policajti ho konečne chytili!
- 12:30 VIDEO: Mestskí policajti si vzali na mušku ďalšie košické sídliská, okrem neprispôsobivých občanov riešili aj...
- 12:00 Trh so športovým tovarom čaká zemetrasenie, na Slovensko prichádza poľský gigant
- 12:00 Streľba v Nových Zámkoch vystrašila obyvateľov. Niekto sa chce zbaviť miestnych holubov
- 12:00 Od 1. mája platí zákaz alkoholu aj pre spolujazdcov. Pokuta až 650 €, no platí dôležitá výnimka
- 12:00 FOTO: Za skalickým trdelníkom aj históriou na dvoch kolesách: Táto trasa vás prevedie Moravou aj Slovenskom
- 11:30 Najprestížnejšia ratingová agentúra neverí Kamenického konsolidácii. Rating Slovenska je najnižší za posledných 12 rokov
- 11:30 FOTO: Nad Revúcou vyrástla sauna, ktorá láka na oddych v prírode a výhľad na mesto. Prenajať si ju môžete aj vy
- 11:11 Obľúbená televízia po 15 rokoch končí. Diváci ju už nikde v ponuke nenájdu, za projektom stála známa tvár
- 11:00 Prešovčania prezradili svoje obľúbené miesta. Vyhráva príroda či mesto?